138 Madiera Beach Boulevard, KISSIMMEE, FL 34746
Active
Property Photos
Would you like to sell your home before you purchase this one?
Priced at Only: $425,000
For more Information Call:
Address: 138 Madiera Beach Boulevard, KISSIMMEE, FL 34746
Property Location and Similar Properties
- MLS#: S5146755 ( Residential )
- Street Address: 138 Madiera Beach Boulevard
- Viewed: 5
- Price: $425,000
- Price sqft: $180
- Waterfront: No
- Year Built: 2003
- Bldg sqft: 2367
- Bedrooms: 4
- Total Baths: 3
- Full Baths: 3
- Garage / Parking Spaces: 2
- Days On Market: 16
- Additional Information
- Geolocation: 28.2919 / -81.4723
- County: OSCEOLA
- City: KISSIMMEE
- Zipcode: 34746
- Subdivision: Terra Verde
- Middle School: Kissimmee
- High School: Poinciana
- Provided by: LA ROSA REALTY LLC
- Contact: Irena Aistrop
- 321-939-3748

- DMCA Notice
-
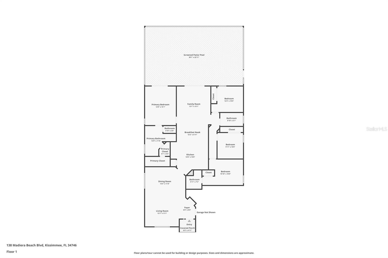
DescriptionA beautifully furnished 4 bedroom, 3 bathroom pool home with two ensuite bedrooms, set within a guard gated resort community, offering a tranquil wooded view and a highly sought after south facing pool deck bathed in sun all day. From the moment you step inside, the homes open layout, high ceilings, and abundant natural light create an inviting and spacious feel. At the front of the home, a formal living and dining area with decorative shelving provides a welcoming first impression, while the main living space unfolds toward the rear with a seamless flow between the kitchen, casual dining area, and family roomideal for both relaxing and entertaining. The remodeled kitchen features granite countertops, modern cabinetry, and a counter height breakfast bar, all designed to connect effortlessly with the main living areas. Large sliding glass doors from the family room open up to the outdoor space, blending indoor and outdoor living. The primary suite is generously sized and positioned to enjoy views of the pool and conservation. It includes a large closet and a remodeled ensuite bathroom with granite counters, a modern rectangular sink, a separate shower, and a spacious corner soaking tub. A second bedroom also offers its own ensuite bathroom, providing flexibility for guests or strong short term rental appeal. Two additional themed twin bedrooms share a third updated bathroom, also finished with granite counters and contemporary fixtures. Throughout the home, ceramic tile flooring runs through the main living areas, complemented by laminate wood flooring in the bedrooms, offering both style and durability. Step outside to a spacious south facing pool deck designed for all day sunshinean especially desirable feature for short term rentals. The outdoor area includes multiple seating spaces, lounge chairs, and a private pool with a bubbling hot tub, all overlooking a peaceful wooded conservation backdrop. The setting is both private and relaxing, with ample deck space for enjoying Florida living year round. This home is fully furnished and turn key, making it an excellent opportunity for personal use, a second home, or an income producing vacation rental. Recent updates provide added confidence and peace of mind, including a roof replaced in 2019, an AC system approximately 5 years old, an electric pool heater installed just 2 years ago, and a washer and dryer also replaced within the last 2 yearshelping ensure the home is as functional as it is well presented. Located within Terra Verde Resort, a well established, guard gated community known for its amenities, residents and guests enjoy access to a lakefront clubhouse, resort style pool, fitness center, playground, game room, and sports courts, all just 12 houses down from the property. The location offers outstanding conveniencejust minutes to US 192 with its wide array of shopping, dining, and entertainment options. Walt Disney World is only 4 miles away, Universal Studios Florida 35 minutes, and Orlando International Airport is just 25 minutes, making travel and day trips effortless. A standout opportunity in a high demand resort communityfully furnished, ideally positioned, and ready to perform from day one.
Payment Calculator
- Principal & Interest -
- Property Tax $
- Home Insurance $
- HOA Fees $
- Monthly -
For a Fast & FREE Mortgage Pre-Approval
Apply Now
Apply NowFeatures
Building and Construction
- Covered Spaces: 0.00
- Exterior Features: Lighting, Sidewalk, Sliding Doors
- Flooring: Ceramic Tile, Laminate
- Living Area: 1940.00
- Roof: Shingle
Property Information
- Property Condition: Completed
Land Information
- Lot Features: Landscaped, Sidewalk, Paved, Private
School Information
- High School: Poinciana High School
- Middle School: Kissimmee Middle
Garage and Parking
- Garage Spaces: 2.00
- Open Parking Spaces: 0.00
- Parking Features: Driveway
Eco-Communities
- Pool Features: Child Safety Fence, Gunite, Heated, In Ground, Screen Enclosure
- Water Source: Public
Utilities
- Carport Spaces: 0.00
- Cooling: Central Air
- Heating: Central, Electric
- Pets Allowed: Yes
- Sewer: Public Sewer
- Utilities: Cable Connected, Electricity Connected, Public, Sewer Connected, Water Connected
Amenities
- Association Amenities: Clubhouse, Fitness Center, Gated, Playground, Pool, Recreation Facilities
Finance and Tax Information
- Home Owners Association Fee Includes: Pool, Private Road
- Home Owners Association Fee: 300.00
- Insurance Expense: 0.00
- Net Operating Income: 0.00
- Other Expense: 0.00
- Tax Year: 2025
Other Features
- Appliances: Dishwasher, Disposal, Dryer, Electric Water Heater, Microwave, Range, Refrigerator, Washer
- Association Name: Terraverde Resort
- Association Phone: 407-396-2327
- Country: US
- Furnished: Turnkey
- Interior Features: Ceiling Fans(s), High Ceilings, Living Room/Dining Room Combo, Open Floorplan, Thermostat, Walk-In Closet(s), Window Treatments
- Legal Description: TERRA VERDE PB 14 PGS 90-92 LOT 36
- Levels: One
- Area Major: 34746 - Kissimmee (West of Town)
- Occupant Type: Vacant
- Parcel Number: 24-25-28-5225-0001-0360
- Possession: Close Of Escrow
- Style: Other
- View: Trees/Woods
- Zoning Code: OPD
Similar Properties
Nearby Subdivisions
Bass Lake Estates
Bella Isle Isles Of Bellalago
Bellalago
Bellalago Ph 04p
Bellalago Ph 2n
Bellalago Ph 3m
Bellalago Ph 4k
Bellalago Ph 4p
Bellalago Ph 5 O
Bellalago Ph 5j
Bellalago Ph 5j Sec 2
Bellalago Ph 5j Sec 3
Bellalago Ph 5j Section 2
Bellalago Ph 6h 6i
Bellalago Ph 7l
Bellalago Ph B2
Bellalago Ph5j Section 2
Bellalago Phase B2
Bellalagoph 5j Sec 2
Bellavida Ph 01
Bellavida Ph 1
Bellavida Ph 2a
Bellavida Ph 2b
Bellavida Ph 2c
Bellavida Resort
Bobbie Jean Acres
Brighton Lakes
Brighton Lakes Ph 1
Brighton Lakes Ph 1 Parcel F
Brighton Lakes Ph 1 Parcels A
Brighton Lakes Ph 1 Prcl D
Brighton Lakes Ph 2 Prcl H
Brighton Lakes Ph 2 Prcl I
Brighton Lakes Ph 2 Prcl J
Brighton Lakes Ph I
Campbell Heights
Casa Bella
Chatham Park At Sausalito Ph 2
Chatham Park Ph 03
Concorde Estates
Concorde Estates Ph 1
Concorde Estates Ph 1b
Concorde Estates Ph 2
Concorde Estates Ph 2a
Concorde Estates Ph 2b
Cove At Storey Lake 4
Cove At Storey Lake 5
Cove At Storey Lake Ii
Cove At Storey Lake Iii
Covestorey Lake Ii
Covestorey Lake Iv
Covestorey Lk Ii
Creekside Ph 01
Creekside Ph 3
Crystal Cove Residence
Crystal Cove Resort
Cumbriam Lakes Dr
Cumbrian Lakes
Cumbrian Lakes Residence Ph 3
Cumbrian Lakes Resort
Cumbrian Lakes Resort Ph 1
Cumbrian Lakes Resort Ph 2
Cumbrian Lakes Resort Ph 3
Cypress Hammock
Cypress Hammock Ph 1
Cypress Hammock Ph 2
Cypress Shadows
Eagle Lake Ph 2b
Eagle Lake Ph 3
Eagle Lake Ph 4a
Eagle Lake Ph 4b
Eagle Pointe
Eagle Pointe Ph 2
Eagle Pointe Ph 4
Eagle Pointeph 3
Eagles Nest At The Oaks
Forest
Fountains On Pleasant Hill Roa
Greenpoint Essential Bldg 1
Greenpoint Essential Hotel Con
Ham Brown Reserve Ph 1a
Ham Brown Reserve Ph 1a 1b 1c
Harbor Shores
Hawks Run
Hidden Harbor
Indian Point Ph 1
Indian Point Ph 5
Indian Point Ph 6
Indian Point Ph 7
Indian Wells
Isles Of Bellalago
Isles Of Bellalago Ph 2
Knightsbridge 50s
Knightsbridge Ph 1
Lake Berkley Resort
Lake Berkley Resort Ph 02
Lake Berkley Resort Ph 2
Legacy Grand East Gate Condo
Liberty Village Ph 1
Liberty Village Ph 2
Lucaya Village Ph 2
Maingate Condo Bldg A
Maingate Hotel Condo
Montego Bay
Na
Not Applicable
Oaks 2 The
Oaks Ph 1 B1
Oaks Ph 1 B2
Orange Blossom Acres
Orangebranch Bay
Overoaks Rep 1
Pastures The
Pineridge Estates
Pleasant Hill Heights
Pleasant Hill Lakes
Pleasant Hill Trails
Reserves At Pleasant Hill
Seasons
Shingle Creek Reserve At The O
Shingle Crk Reserveoaks
Shingle Crk Reserveoaks Ph V
Shingle Crk Resrv At Oaks
Steeplechase
Storey Creek
Storey Creek Ph 1
Storey Creek Ph 2a
Storey Creek Ph 2a Pb 28 Pgs 1
Storey Creek Ph 2b
Storey Creek Ph 3a
Storey Creek Ph 3b 4
Storey Creek Ph 3b & 4
Storey Creek Ph6
Storey Lake
Storey Lake Block I
Storey Lake Ii
Storey Lake Ii Cove
Storey Lake Iii
Storey Lake Ph 3
Storey Lake Ph I2
Storey Lake Tr K
Terra Verde
Terra Verde Ph 02
Terra Verde Ph 2
The Oaks
The Terraces At Storey Lake Co
Tohop Estates
Veranda Palms
Veranda Palms Ph 1c
Veranda Palms Ph 2a
Veranda Palms Ph 2b1
Veranda Palms Ph 2b22c
Verandahs
Whispering Oaks
Wilderness Ph 1
Wilderness Ph 3 The
Windmill Point
Windmill Point Unit 3b
Windward Cay
- The Dial Team
- Tropic Shores Realty
- Love Life
- Mobile: 561.201.4476
- dennisdialsells@gmail.com






















































































