1507 Lake View Avenue, LEESBURG, FL 34748
Active
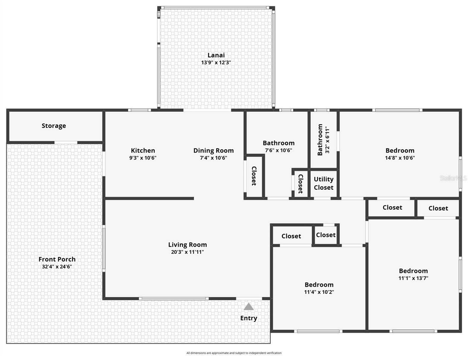
Property Photos
Would you like to sell your home before you purchase this one?
Priced at Only: $264,000
For more Information Call:
Address: 1507 Lake View Avenue, LEESBURG, FL 34748
Property Location and Similar Properties
- MLS#: O6384106 ( Residential )
- Street Address: 1507 Lake View Avenue
- Viewed: 6
- Price: $264,000
- Price sqft: $152
- Waterfront: No
- Year Built: 1961
- Bldg sqft: 1736
- Bedrooms: 3
- Total Baths: 2
- Full Baths: 1
- 1/2 Baths: 1
- Garage / Parking Spaces: 1
- Days On Market: 5
- Additional Information
- Geolocation: 28.8453 / -81.8885
- County: LAKE
- City: LEESBURG
- Zipcode: 34748
- Subdivision: Griffin Shores
- Elementary School: Beverly Shores Elem
- Middle School: Carver
- High School: Leesburg
- Provided by: NEXTHOME LOTT PREMIER REALTY
- Contact: Crystal Falcone
- 407-222-0495

- DMCA Notice
-
DescriptionOne or more photo(s) has been virtually staged. No HOA! Welcome to this beautifully remodeled 3 bedroom, 1 and 1.5 bath home in the heart of Leesburg! Offering 1,152 heated square feet, this cozy, family friendly starter home has been completely renovated from top to bottom thoughtfully redesigned with modern finishes and an open, refreshed feel throughout. Situated on an oversized 100x150 lot, this property gives you space to spread out, entertain, or simply enjoy the peaceful surroundings. With no HOA, youll have the freedom to truly make it your own. Major updates include a new roof (2018) and a brand new A/C system (2026), giving you peace of mind for years to come. Located in a quiet, established neighborhood perfect for evening walks, youll even catch a beautiful lake view just steps away from the property, adding an extra touch of charm to this already special home. Whether youre a first time buyer, downsizing, or looking for a move in ready investment, this fully renovated gem is one you dont want to miss! House is eligible for complete financing!
Payment Calculator
- Principal & Interest -
- Property Tax $
- Home Insurance $
- HOA Fees $
- Monthly -
For a Fast & FREE Mortgage Pre-Approval
Apply Now
Apply NowFeatures
Building and Construction
- Covered Spaces: 0.00
- Exterior Features: Lighting
- Fencing: Wood
- Flooring: Luxury Vinyl, Tile
- Living Area: 1152.00
- Other Structures: Shed(s)
- Roof: Shingle
Land Information
- Lot Features: Paved, Unincorporated
School Information
- High School: Leesburg High
- Middle School: Carver Middle
- School Elementary: Beverly Shores Elem
Garage and Parking
- Garage Spaces: 0.00
- Open Parking Spaces: 0.00
- Parking Features: Driveway
Eco-Communities
- Water Source: Well
Utilities
- Carport Spaces: 1.00
- Cooling: Central Air
- Heating: Electric
- Sewer: Septic Tank
- Utilities: Cable Available, Electricity Available
Finance and Tax Information
- Home Owners Association Fee: 0.00
- Insurance Expense: 0.00
- Net Operating Income: 0.00
- Other Expense: 0.00
- Tax Year: 2025
Other Features
- Appliances: Dishwasher, Ice Maker, Microwave, Range, Refrigerator
- Country: US
- Furnished: Unfurnished
- Interior Features: Ceiling Fans(s), Thermostat
- Legal Description: GRIFFIN SHORES LOT 57 PB 12 PG 12 ORB 6205 PG 1500
- Levels: One
- Area Major: 34748 - Leesburg
- Occupant Type: Vacant
- Parcel Number: 10-19-24-0650-000-05700
- Possession: Close Of Escrow
- Zoning Code: R-1
Similar Properties
Nearby Subdivisions
Andersons Mineral Water Court
Arbor Park
Arbors Of Lake Harris
Arlington Rdg Ph 01c
Arlington Rdg Ph 3a
Arlington Rdg Ph 3c
Arlington Rdg Ph Ia
Arlington Rdg Ph Ib
Arlington Ridge
Arlington Ridge Ph 02
Arlington Ridge Ph 1b
Arlington Ridge Phase 1b
Ashton Woods
Bradford Ridge
C M Loves Subdivision
Edgewater Heights Corr
Fern Park
Fox Pointe At Rivers Edge
Griffin Shores
Groves At Whitemarsh
Hartwood Reserve Ph 1
Heritage Cove Sec 24
Highland Lakes
Highland Lakes Ph 01
Highland Lakes Ph 01b
Highland Lakes Ph 02a
Highland Lakes Ph 02b
Highland Lakes Ph 02c
Highland Lakes Ph 02d Tr Ad
Highland Lakes Ph 03 Tr Ag
Highland Lakes Ph 2a
Highland Lakes Sub
Hilltop View
Hollywood Heights
Indian Hill
Johnsons Mary K T S
Lake Denham Estates
Leesburg Arbors Lake Harris
Leesburg Arlington Ridge Ph 02
Leesburg Arlington Ridge Ph 1a
Leesburg Arlington Ridge Ph 1b
Leesburg Arlington Ridge Ph 1c
Leesburg Ashton Woods
Leesburg Bel Mar
Leesburg Beverly Shores
Leesburg Crestridge At Leesbur
Leesburg Gamble Cottrell
Leesburg Hillside Manor
Leesburg Indian Oaks
Leesburg J W Lees Sub
Leesburg Kingson Park
Leesburg Lagomar Shores
Leesburg Lake Pointe At Summit
Leesburg Legacy
Leesburg Legacy Leesburg
Leesburg Legacy Of Leesburg
Leesburg Liberia
Leesburg Loves Point Estates
Leesburg Lsbg Realty Cos Add
Leesburg Majestic Oaks Shores
Leesburg Meadows Leesburg
Leesburg Newtown
Leesburg Oak Crest
Leesburg Oakhill Park
Leesburg Palmora Park
Leesburg Palmora Park Annex
Leesburg Palmora Sub
Leesburg Pulp Mill Sub
Leesburg Royal Oak Estates
Leesburg Royal Oak Estates Sub
Leesburg Sleepy Hollow First A
Leesburg Stoer Island Add 03
Leesburg Sunset Terrace
Leesburg The Fernery Sub
Leesburg The Pulp Mill Sub
Leesburg Village At Lake Point
Leesburg W C Wilkins Sub
Leesburg Waters Edge Sub
Leesburg Whispering Pines
Leesburg Whispering Pines Anne
Legacy Leesburg
Legacy Of Leesburg
Legacyleesburg Un 04
Morningview At Leesburg
Non
Not In Hernando
Not On The List
Oak Crest
Oak Park Homesites
Oakstone Farms
Orange Heights
Other
Overlooklk Griffin
Palmora Pk Anx
Park Hill Ph 02
Park Hill Ph 2
Park Hill Sub
Pennbrooke
Pennbrooke Fairways
Pennbrooke Ph 01d
Pennbrooke Ph 01f Tr Ad Stree
Pennbrooke Ph 01h
Pennbrooke Ph 01k
Pennbrooke Ph 02r Lt R23
Pennbrooke Ph Q Sub
Plantation At Leesburg
Plantation At Leesburg Ashland
Plantation At Leesburg Belle G
Plantation At Leesburg Belle T
Plantation At Leesburg Casa De
Plantation At Leesburg Glen Ea
Plantation At Leesburg Glendal
Plantation At Leesburg Golfvie
Plantation At Leesburg Greentr
Plantation At Leesburg Heron R
Plantation At Leesburg Hidden
Plantation At Leesburg Laurel
Plantation At Leesburg Long Me
Plantation At Leesburg Magnoli
Plantation At Leesburg Mulberr
Plantation At Leesburg Nottowa
Plantation At Leesburg Oak Tre
Plantation At Leesburg River C
Plantation At Leesburg Riversi
Plantation At Leesburg Riverwa
Plantation At Leesburg Sable R
Plantation At Leesburg Sawgras
Plantation At Leesburg Summerb
Plantation At Leesburg Tara Vi
Plantationleesburg Belle Grove
Plantationleesburg Glen Eagle
Plantationleesburg Laurel Vly
Plantationleesburg Tara View
Royal Highlands
Royal Highlands Ph 01 Tr B Les
Royal Highlands Ph 01a
Royal Highlands Ph 01b
Royal Highlands Ph 01d
Royal Highlands Ph 01e
Royal Highlands Ph 01f
Royal Highlands Ph 02 Lt 992 O
Royal Highlands Ph 02a Lt 1173
Royal Highlands Ph 02b Lt 1317
Royal Highlands Ph 2 B Sub
Royal Highlands Ph I Sub
Royal Highlands Ph Ia Sub
Royal Highlands Phase 1 D
Royal Highlands Phase 1a
Royal Hlnds Ph 2b
Royal Hlnds Ph Id
Seasonshillside
Seasonspk Hill
Selma Homesites Partial Replat
Sherwood Forest
Sleepy Hollow
Sunnyside Trls Ph 1
Sunshine Park
The Plantation At Leesburg
Whitemarsh
Windsong
Windsong At Leesburg
Windsong At Leesburg Phase 2
Windsongleesburg Ph 2
Woody Acres First Add Sub
- The Dial Team
- Tropic Shores Realty
- Love Life
- Mobile: 561.201.4476
- dennisdialsells@gmail.com






































