6257 Cape Hatteras Way Ne 5, ST PETERSBURG, FL 33702
Active
Property Photos
Would you like to sell your home before you purchase this one?
Priced at Only: $445,000
For more Information Call:
Address: 6257 Cape Hatteras Way Ne 5, ST PETERSBURG, FL 33702
Property Location and Similar Properties
- MLS#: TB8493980 ( Residential )
- Street Address: 6257 Cape Hatteras Way Ne 5
- Viewed: 17
- Price: $445,000
- Price sqft: $281
- Waterfront: Yes
- Wateraccess: Yes
- Waterfront Type: Canal - Saltwater
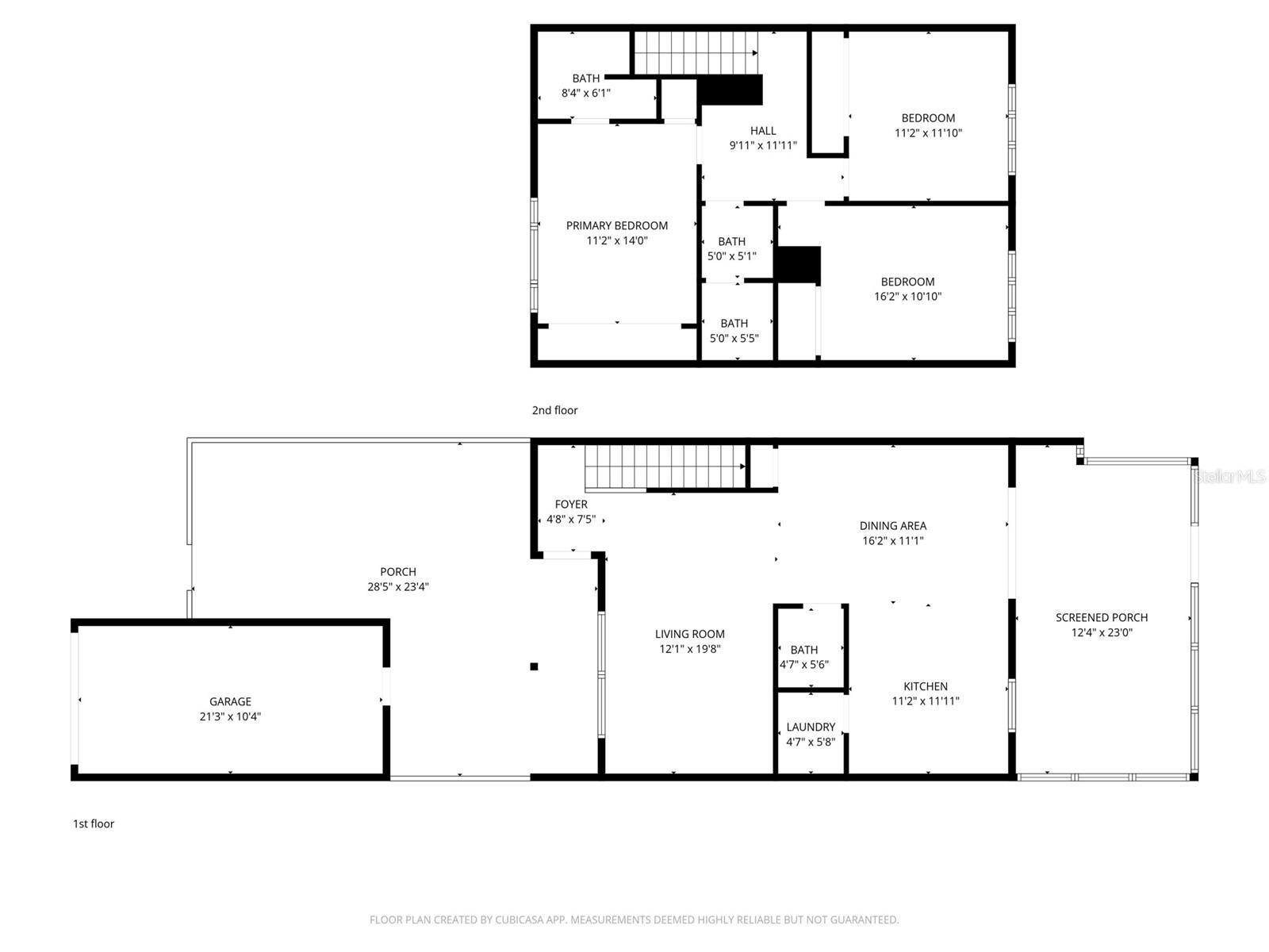
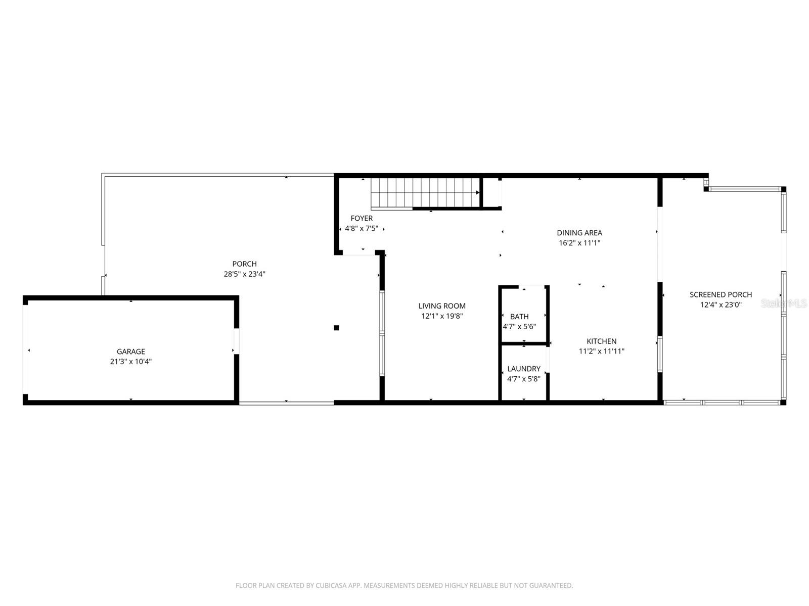
- Year Built: 1973
- Bldg sqft: 1582
- Bedrooms: 3
- Total Baths: 3
- Full Baths: 2
- 1/2 Baths: 1
- Garage / Parking Spaces: 1
- Days On Market: 10
- Additional Information
- Geolocation: 27.8309 / -82.6132
- County: PINELLAS
- City: ST PETERSBURG
- Zipcode: 33702
- Subdivision: Mariners Pass
- Provided by: COMPASS FLORIDA LLC
- Contact: Zach Steinberger
- 727-339-7902

- DMCA Notice
-
DescriptionOne or more photo(s) has been virtually staged. Welcome to 6257 Cape Hatteras Way NE #5an extraordinarily rare offering in the coveted Mariners Pass community, where luxury, lifestyle, and direct water access converge. One of only a select few residences in the entire community to feature a DEEDED BOAT SLIP just steps from your back door, this is a true boaters dream and an opportunity that seldom comes to market. From the moment you enter, the home exudes refined coastal sophistication. Thoughtfully upgraded with brand new luxury vinyl plank flooring, the interiors feel both elevated and effortless, perfectly complementing the waterfront setting. The chef inspired kitchen is designed to impress, featuring shaker style cabinetry, a sleek stainless steel appliance suite, and a tray ceiling detail that adds a subtle yet unmistakable touch of architectural elegance. The open concept living spaces flow seamlessly to a screened in waterfront lanai, creating the ideal setting for morning coffee, sunset cocktails, or simply enjoying the tranquil water views. Just beyond, your private boat slip awaitsoffering unparalleled convenience for spontaneous days on the water. Upstairs, three generously sized bedrooms provide a private retreat, including a serene primary suite designed for relaxation. Outdoor living is equally compelling, with a front patio and private courtyard complete with a jacuzzi, offering a secluded oasis to unwind under the Florida sky. A one car garage adds convenience, while impact rated windows and doors provide both peace of mind and energy efficiency. Located in Mariners Pass, a waterfront community known for its exceptional value and comprehensive HOA amenitiesincluding water, sewer, trash, exterior maintenance, grounds care, community pools, fishing docks, and morethis residence offers a truly effortless ownership experience. This is more than a homeits a lifestyle defined by water, privacy, and rarity. Opportunities like this dont come often. Private showings available by appointment.
Payment Calculator
- Principal & Interest -
- Property Tax $
- Home Insurance $
- HOA Fees $
- Monthly -
For a Fast & FREE Mortgage Pre-Approval
Apply Now
Apply NowFeatures
Building and Construction
- Covered Spaces: 0.00
- Exterior Features: Lighting, Sidewalk
- Flooring: Luxury Vinyl
- Living Area: 1582.00
- Roof: Shingle
Garage and Parking
- Garage Spaces: 1.00
- Open Parking Spaces: 0.00
Eco-Communities
- Pool Features: Heated, In Ground
- Water Source: Public
Utilities
- Carport Spaces: 0.00
- Cooling: Central Air
- Heating: Central, Electric
- Pets Allowed: Yes
- Sewer: Public Sewer
- Utilities: Cable Connected, Electricity Connected, Sewer Connected, Water Connected
Amenities
- Association Amenities: Cable TV, Maintenance, Pool
Finance and Tax Information
- Home Owners Association Fee Includes: Cable TV, Common Area Taxes, Pool, Insurance, Internet, Maintenance Structure, Maintenance Grounds, Maintenance, Pest Control, Private Road, Sewer, Trash, Water
- Home Owners Association Fee: 0.00
- Insurance Expense: 0.00
- Net Operating Income: 0.00
- Other Expense: 0.00
- Tax Year: 2025
Other Features
- Appliances: Cooktop, Dishwasher, Disposal, Dryer, Electric Water Heater, Freezer, Microwave, Range, Refrigerator, Washer
- Association Name: Sommer Troub
- Country: US
- Furnished: Unfurnished
- Interior Features: Ceiling Fans(s), Eat-in Kitchen, Kitchen/Family Room Combo, Living Room/Dining Room Combo, Open Floorplan, PrimaryBedroom Upstairs, Split Bedroom, Stone Counters, Thermostat, Window Treatments
- Legal Description: MARINERS PASS I CONDO UNIT 1 APT 22 TOGETHER WITH USE OF BOAT SLIP 3
- Levels: Two
- Area Major: 33702 - St Pete
- Occupant Type: Vacant
- Parcel Number: 33-30-17-55308-000-0220
- Style: Coastal, Florida, Key West
- View: Water
- Views: 17
Similar Properties
- The Dial Team
- Tropic Shores Realty
- Love Life
- Mobile: 561.201.4476
- dennisdialsells@gmail.com





















































