814 Davis Boulevard, TAMPA, FL 33606
Active
Property Photos
Would you like to sell your home before you purchase this one?
Priced at Only: $3,999,900
For more Information Call:
Address: 814 Davis Boulevard, TAMPA, FL 33606
Property Location and Similar Properties
- MLS#: TB8478470 ( Residential )
- Street Address: 814 Davis Boulevard
- Viewed: 14
- Price: $3,999,900
- Price sqft: $505
- Waterfront: No
- Year Built: 2022
- Bldg sqft: 7923
- Bedrooms: 5
- Total Baths: 6
- Full Baths: 4
- 1/2 Baths: 2
- Garage / Parking Spaces: 2
- Days On Market: 9
- Additional Information
- Geolocation: 27.9144 / -82.4539
- County: HILLSBOROUGH
- City: TAMPA
- Zipcode: 33606
- Subdivision: Byars Thompson Add Davis
- Elementary School: Gorrie
- Middle School: Wilson
- High School: Plant
- Provided by: EXIT BAYSHORE REALTY
- Contact: Ashly Haley
- 813-839-6869

- DMCA Notice
-
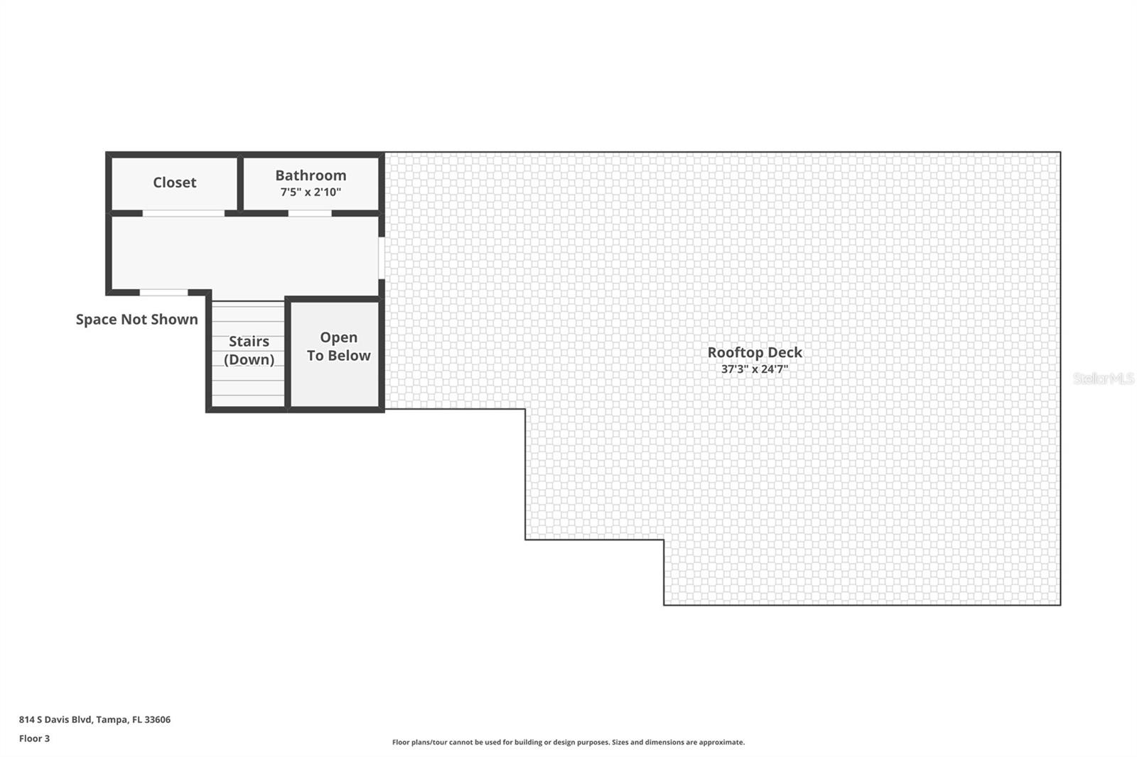
DescriptionThis absolutely exquisite, state of the art modern residence on Davis Islands was built by Forge Building Company and showcases exceptional craftsmanship and design throughout. This stunning home features 5 bedrooms, 4 full bathrooms, 3 half bathrooms, and a spectacular rooftop terrace.Upon entering, youre immediately greeted by a dramatic floating wood staircase and a striking three sided linear fireplace that elegantly separates the family and dining areas. The open concept kitchen and living space overlook the beautiful lanai, complete with an outdoor kitchen, gorgeous pool and spa, and a seamless indoor outdoor sound systemperfect for entertaining.The chefs kitchen is a true showpiece, featuring Calacatta Michelangelo marble countertops and backsplash, premium Wolf and Sub Zero appliances, a Sub Zero wine column, and a hidden walk in pantry conveniently located adjacent to the custom built drop zone just off the garage.The first floor also offers a spacious entertainment and game room with a built in bar, providing the ideal setting for hosting guests, game nights, and watching your favorite teams. A private first floor bedroom with a separate full bathroom offers flexibility for guests or a home office.Ascending the floating staircase or private elevator to the second floor, youll find the expansive primary suite, complete with a custom built in bed frame and headboard, a breathtaking spa inspired bathroom, and large sliding glass doors that open to a private balcony with stunning airport and water views. Wide hallways filled with natural light lead to 3 additional bedrooms, a spacious Jack and Jill bathroom, and a well appointed laundry room.The third floor features a half bathroom and an incredible rooftop terrace, already prepped for a built in full bar and offering panoramic viewsan extraordinary space for entertaining or relaxing above it all.Additional features include a full Control4 home automation system, in wall and in ceiling surround sound, energy efficient spray foam insulation, multiple Trane A/C systems, a private elevator, 10 foot ceilings on all floors, Level 5 drywall, wide plank white oak flooring throughout, custom fabricated railings, anodized aluminum windows and doors, and floor to ceiling windows that flood the home with natural light.Enjoy the convenience of taking your golf cart to the Village, where youll find an array of restaurants, shops, and bars. Davis Islands also offers bike paths, baseball fields, tennis courts, a historic pool, dog parks, a beach, a public marina, and its own airport. With a short commute to Downtown Tampa, Water Street, Sparkman Wharf, and the Tampa Riverwalk, this home offers not just a residencebut an extraordinary lifestyle.
Payment Calculator
- Principal & Interest -
- Property Tax $
- Home Insurance $
- HOA Fees $
- Monthly -
For a Fast & FREE Mortgage Pre-Approval
Apply Now
Apply NowFeatures
Building and Construction
- Builder Name: Forge Building Co.
- Covered Spaces: 0.00
- Exterior Features: Balcony, Lighting, Outdoor Grill, Private Mailbox, Rain Gutters, Sidewalk, Sliding Doors
- Fencing: Electric, Fenced
- Flooring: Carpet, Ceramic Tile, Hardwood, Marble
- Living Area: 5774.00
- Roof: Membrane
School Information
- High School: Plant-HB
- Middle School: Wilson-HB
- School Elementary: Gorrie-HB
Garage and Parking
- Garage Spaces: 2.00
- Open Parking Spaces: 0.00
- Parking Features: Driveway, Garage Door Opener, On Street
Eco-Communities
- Pool Features: Deck, Gunite, Heated, In Ground, Salt Water
- Water Source: Public
Utilities
- Carport Spaces: 0.00
- Cooling: Central Air, Zoned
- Heating: Central, Electric, Heat Pump, Zoned
- Sewer: Public Sewer
- Utilities: BB/HS Internet Available, Cable Available, Electricity Connected, Natural Gas Connected, Public, Sewer Connected, Water Connected
Finance and Tax Information
- Home Owners Association Fee: 0.00
- Insurance Expense: 0.00
- Net Operating Income: 0.00
- Other Expense: 0.00
- Tax Year: 2024
Other Features
- Appliances: Built-In Oven, Convection Oven, Cooktop, Dishwasher, Disposal, Dryer, Gas Water Heater, Ice Maker, Microwave, Range Hood, Wine Refrigerator
- Country: US
- Furnished: Unfurnished
- Interior Features: Ceiling Fans(s), Elevator, High Ceilings, Kitchen/Family Room Combo, Open Floorplan, PrimaryBedroom Upstairs, Solid Surface Counters, Solid Wood Cabinets, Stone Counters, Thermostat, Walk-In Closet(s), Window Treatments
- Legal Description: BYARS THOMPSON ADDITION DAVIS ISLAND THAT PART OF LOTS 18 & 19 DESC AS BEG AT SE COR OF LOT 18 & RUN NLY 55 FT ALONG CURVED E BDRY OF LOT 18 WLY 125.04 FT TO PT ON WLY BDRY OF LOT 18, 53 FT N OF SW COR SLY 88 FT ALONG WLY BDRY OF LOTS 18 & 19 ELY 114.06 FT TO PT ON ELY BDRY OF LOT 19, 32 FT SLY FROM NE COR AND NLY 32 FT TO BEG BLOCK 6
- Levels: Three Or More
- Area Major: 33606 - Tampa / Davis Island/University of Tampa
- Occupant Type: Owner
- Parcel Number: A-36-29-18-50I-000006-00018.0
- Style: Contemporary, Mid-Century Modern
- Views: 14
- Zoning Code: RS-75
Nearby Subdivisions
Benjamins 5th Add
Benjamins Add To West Ta
Byars Thompson Add Davis
Byars Thompson Addition Davis
Corronella
Davis Islands
Davis Islands Pb10 Pg52 To 57
Davis Islands Rep Of Pt O
Hamners Sub
Hyde Park Condominium
Hyde Park West
Lingerlong
Morrison Grove Sub
North Hyde Park
Riverside
W J Chambers Resub Of
Watrous Rev Map
Wecklers Julia Sub
Wynne Realty Cos Rev Map
- The Dial Team
- Tropic Shores Realty
- Love Life
- Mobile: 561.201.4476
- dennisdialsells@gmail.com









































































